Search

14 Jan 2026

Waterford to get new fire station after €2.7 million funding injection

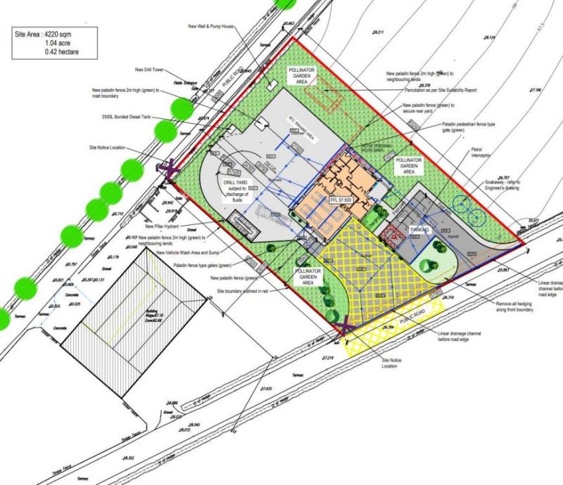
The station will be constructed on a green field site accessed off the R677 Regional Road and Local Primary Road L3042 approximately 1 km from the existing Kilmacthomas Fire Station.

Waterford to get new fire station after €2.7 million funding injection

Waterford to get new fire station after €2.7 million funding injection

A new fire station is to be built near the existing Kilmacthomas Fire Station after a €2.7m funding injection from Government.

The station will be constructed on a green field site accessed off the R677 Regional Road and Local Primary Road L3042 approximately 1 km from the existing Kilmacthomas Fire Station.

The station design is a substantial upgrade from the existing fire station, capable of accommodating the future needs of Kilmacthomas Fire Brigade.

The existing building is limited in size and is situated on a confined site in the centre of Kilmacthomas. The new station will provide adequate facilities for 12 personnel.

READ NEXTWaterford parishes could ‘lose GAA clubs entirely’ amid demographic changes

The development will consist of:

• The construction of a single storey fire station to contain two appliance bays and all supporting fire station welfare facilities including lockers, showers and toilets.

• Construction of a carpark (inclusive of electrical vehicle charging points), service yard, training tower, fire tender set down areas, water supply borehole, packaged sewage treatment plant and percolation area.

• Construction of 2m high paladin fencing to all boundaries with the exception of boundary to Local Primary Road L3042.

• The construction of two vehicular entrance/ access points unto the Local Primary Road L3042 inclusive of all ancillary accommodation and associated siteworks at Graigueshoneen, Kilmacthomas, Waterford.

• The site is a 0.42ha site.

Minister of State for Planning & Local Government, John Cummins TD welcomed the funding announcement and said: “I’m delighted that my department has approved €2.7 million for the construction of a new state of the art fire station at Kilmacthomas. This has been a priority of mine since taking up my position as Minister for State for Local Government and Planning.”

“I have been continually reminded of the importance of this project by my Fine Gael colleagues in the Comeragh District Cllr. Liam Brazil and Cllr. Seanie Power so it is great to finally have certainty on the project proceeding. I believe it is really important in the context of a growing Kilmacthomas and surrounding areas and importantly it will provide state of the art facilities for our valued fire crews who do extraordinary work on behalf of their communities.”

To continue reading this article,
please subscribe and support local journalism!


Subscribing will allow you access to all of our premium content and archived articles.

Subscribe

To continue reading this article for FREE,
please kindly register and/or log in.


Registration is absolutely 100% FREE and will help us personalise your experience on our sites. You can also sign up to our carefully curated newsletter(s) to keep up to date with your latest local news!

Register / Login

Buy the e-paper of the Donegal Democrat, Donegal People's Press, Donegal Post and Inish Times here for instant access to Donegal's premier news titles.

Keep up with the latest news from Donegal with our daily newsletter featuring the most important stories of the day delivered to your inbox every evening at 5pm.